Recoleta - Departamento a estrenar - Frente - Balcón...

Paraguay 1341, Recoleta, Capital Federal

bathroom 3
bedroom 2
La propiedad indicada se encuentra Vendida

Descripción

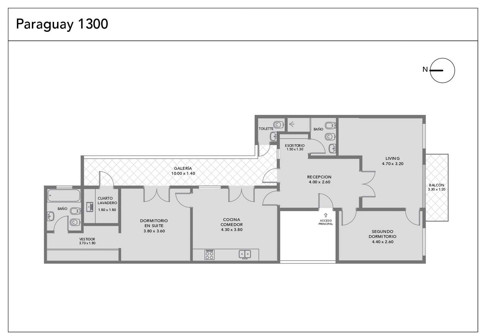
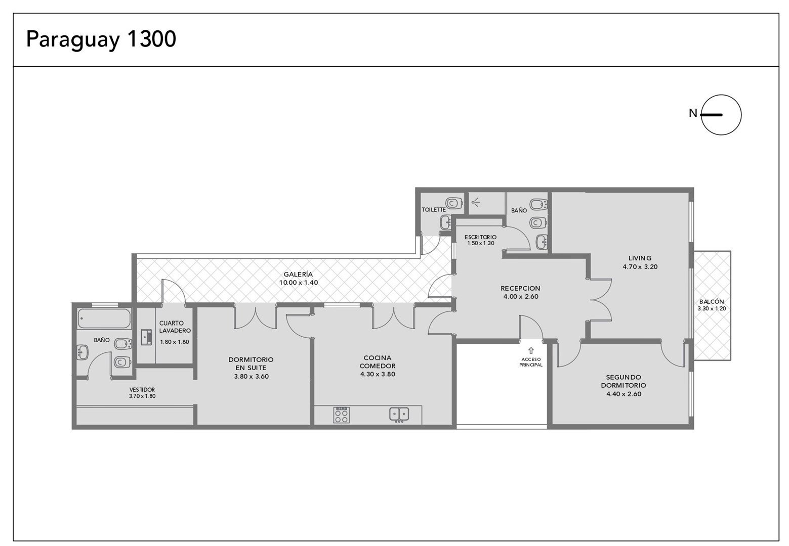
Impactante departamento en Recoleta íntegramente refaccionado a estrenar. 102 m2 cubiertos más balcón al frente. Primer piso por escalera con entrada semi independiente. 4 ambientes de generosas dimensiones y techos de doble altura. Consta de living; comedor separado con cocina integrada; master suite con gran vestidor, y segundo dormitorio. Amplio hall de entrada con sector escritorio. Cuarto de lavado/despensa independiente. Dos baños completos (uno de ellos en suite con hidromasaje) y toilette de servicio. Galería. Muy luminoso y ventilado. Instalación eléctrica, sanitaria y de calefacción a nuevo. Preinstalación de aire acondicionado. Caldera dual a gas y calefacción por radiadores. Pisos de porcelanato y de parquet de roble de eslavonia y pinotea hidrolaqueados. Materiales de primera calidad. La venta incluye todas las luminarias led de diseño, plantas y espejos. Accesible movilidad reducida: No (Ley 5.515), ABL $5.747 Aysa: $3.287 Expensas: $40.000- - - - Toda la información del aviso, incluyendo medidas, precio, impuestos, servicios, etc. son estimativos, sujetos a modificación y no vinculantes, según lo dispuesto en el art. 973, Cód. Civ. y Com. Toda la información del aviso, incluyendo medidas, precio, impuestos, servicios, etc. son estimativos, sujetos a modificación y no vinculantes, según lo dispuesto en el art. 973, Cód. Civ. y Com.

Video

Recorrido virtual

19 Visitas al momento

Ubicación

Juan Pablo Di Blasi

Broker

Solicitar información