Venta - Abasto - Frente - Balcón - Depto 3 ambientes

Jean Jaures 764, Capital Federal

bathroom 1
bedroom 2
La propiedad indicada se encuentra Vendida

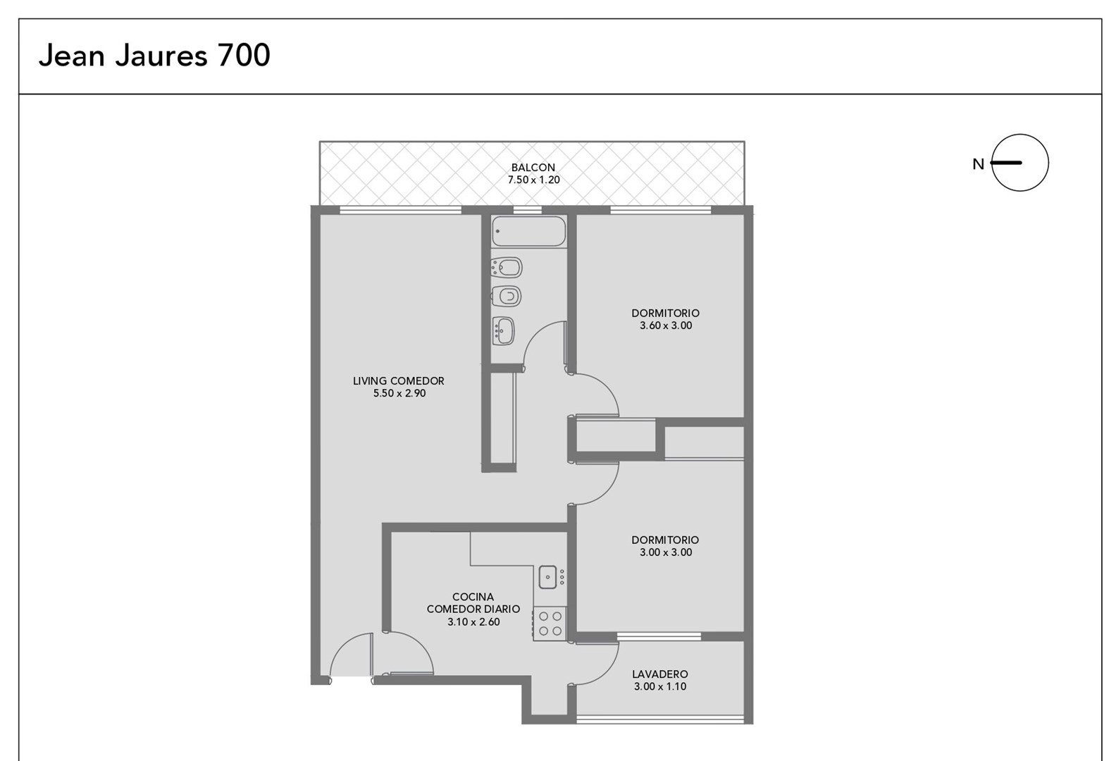
Descripción

Semipiso de tres ambientes en 5°piso al frente a la calle con balcón. Se ingresa al hall de recepción, amplia cocina con lavadero separado, living comedor con salida al balcón. Dormitorio principal con placard empotrado, segundo dormitorio con placard, hall de distribución y baño completo. El edificio se encuentra a 300mts del Shopping Abasto, del Subte B Carlos Gardel y del Subte H Av. Córdoba. Accesible: Si (Ley 23.314) Expensas a: $200.000 ABL: $6.236 Aysa: $7.500 ... - Toda la información del aviso, incluyendo medidas, precio, impuestos, servicios, etc. son estimativos, sujetos a modificación y no vinculantes, según lo dispuesto en el art. 973, Cód. Civ. y Com. Toda la información del aviso, incluyendo medidas, precio, impuestos, servicios, etc. son estimativos, sujetos a modificación y no vinculantes, según lo dispuesto en el art. 973, Cód. Civ. y Com.

Video

Recorrido virtual

24 Visitas al momento

Ubicación

Juan Pablo Di Blasi

Broker

Solicitar información